logo
Informacje » Przetargi ofertowe pisemne
29/02/2012 Zaproszenie do składania ofert cenowych

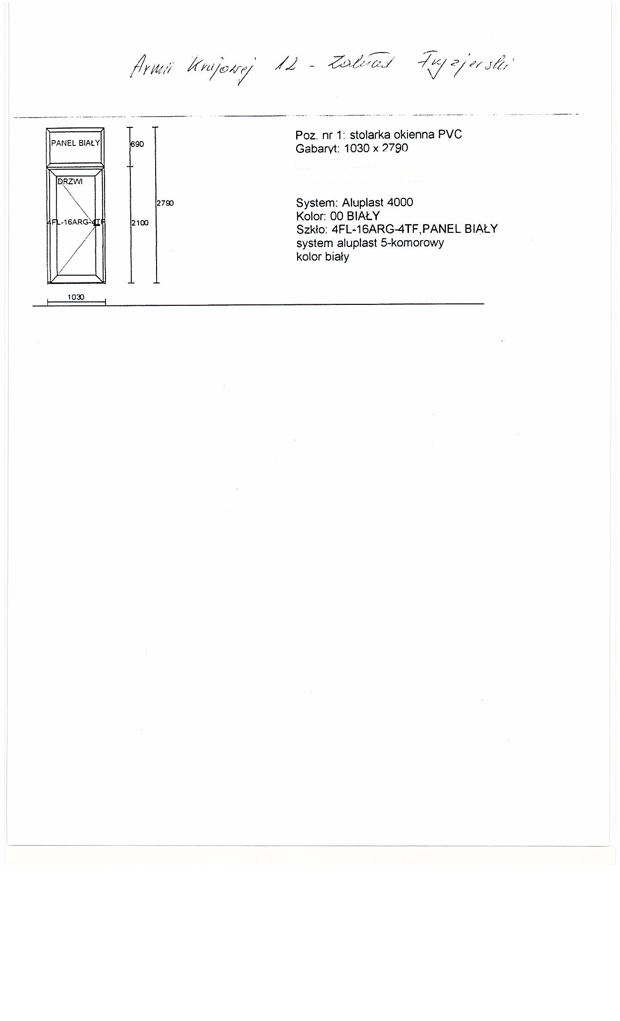
Wymiana drzwi wejściowych szt. 2 oraz dwóch witryn sklepowych stalowych na PCV w lokalach użytkowych (Inowrocławskie Stowarzyszenie Pomocy Dzieciom z Uszkodzeniem Mózgu-dwie witryny i drzwi i Zakład Fryzjerski - drzwi wejściowe) w budynku przy ul. Armii Krajowej 12 w Inowrocławiu.

TypRozmiarPobierzKomentarzData dodaniaLicznik 
.DOC114.5 KB POBIERZZaproszenie2012-02-29 14:45:23405
graf.96.2 KB POBIERZPrzedmiar2012-02-29 14:45:36504
graf.167.6 KB POBIERZs.22012-02-29 14:45:50477

Autor : kg
ZredagowaÅ‚(a) : Krystyna Glonek
Data wprowadzenia : 2012-02-29 14:44:40
Data ostatniej modyfikacji : 2012-02-29 14:44:40
Liczba wyÅ›wietleÅ„ : 1357



licznik odwiedzin: 5948341