logo
Zam贸wienia publiczne » Wrzesie艅 2006
14.09.2006 r. Og艂oszenie o wszcz臋ciu post臋powania.

"Wymiana wewn臋trznej instalacji gazowej w budynku Wsp贸lnoty Mieszkaniowej przy ulicy 6 Stycznia 11 w Inowrocaw艂awiu".

Numer sprawy: DMP. 81/2006聽聽聽聽聽聽聽聽聽聽聽聽聽聽聽聽聽聽聽聽聽聽Inowroc艂aw, dnia 14 wrze艣nia 2006 r.聽聽

聽聽聽聽聽聽聽聽聽聽聽聽聽聽聽聽聽聽聽聽聽聽聽聽聽聽聽聽聽聽聽聽聽聽 OG艁OSZENIE

o przetargu nieograniczonym o warto艣ci poni偶ej 60 000 EURO

1.聽聽聽聽聽 Zamawiaj膮cy: Wsp贸lnota Mieszkaniowa przy ulicy 6 Stycznia 11 w Inowroc艂awiu, w imieniu i na rzecz kt贸rej dzia艂a na mocy umowy o administrowanie, Przedsi臋biorstwo Gospodarki Komunalnej i Mieszkaniowej Sp. z o.o.

Ulica: ks. Piotra Wawrzyniaka 33

Kod: 88-100, Miejscowo艣膰: Inowroc艂aw

Telefon: (0-52) 357- 48-18, faks: (0-52) 357-32-32

REGON: 091581150 NIP: 556-080-85

E-mail: pgkim@poczta.internetdsl.pl

2.聽聽聽聽聽 Przedmiot zam贸wienia:

„Wymiana wewn臋trznej instalacji gazowej w budynku Wsp贸lnoty Mieszkaniowej przy ulicy 6 Stycznia 11 w Inowroc艂awiu”.

3. Nomenklatura – wg Wsp贸lnego S艂ownika Zam贸wie艅 (CPV):

聽聽聽聽聽 45. 33.30.00聽聽 -0聽聽聽聽聽聽聽 roboty instalacyjne gazowe

4. Nie dopuszcza si臋 sk艂adania ofert cz臋艣ciowych.

5. Nie dopuszcza si臋 sk艂adania ofert wariantowych.

6. Osobami uprawnionymi do kontakt贸w z wykonawcami s膮:

聽聽聽 a) Dorota B艂a偶ejczak, tel. (052) 357-20 -93,

聽聽聽 b) Krystyna Glonek, tel. (052) 357-48-18.

7. Termin (okres) realizacji zam贸wienia: od podpisania umowy w ci膮gu 45 dni.

8.Adres strony internetowej, na kt贸rej dost臋pna jest specyfikacja istotnych warunk贸w zam贸wienia: http://pgkim-inowroclaw.samorzady.pl

9. Op艂ata za otrzymanie specyfikacji istotnych warunk贸w zam贸wienia b臋dzie pokrywa膰 jedynie koszty jej druku orazprzekazania.

10. Wykonawca zainteresowany post臋powaniem powinien z艂o偶y膰 wniosek u zamawiaj膮cego z podaniem wszystkich danych firmy -niezb臋dnych do przekazywania zmian i zapyta艅 dotycz膮cych powy偶szego post臋powania.

11. O udzielenie zam贸wienia mog膮 ubiega膰 si臋 wy艂膮cznie Wykonawcy, kt贸rzy:

1) posiadaj膮 uprawnienia do wykonywania okre艣lonej dzia艂alno艣ci lub czynno艣ci, je偶eli ustawy nak艂adaj膮 obowi膮zek posiadania takich uprawnie艅,

2) posiadaj膮 niezb臋dn膮 wiedz臋 i do艣wiadczenie oraz potencja艂 techniczny, a tak偶e dysponuj膮 osobami zdolnymi do wykonania zam贸wienia,

3) znajduj膮 si臋 w sytuacji ekonomicznej i finansowej zapewniaj膮cej wykonanie zam贸wienia,

4) nie podlegaj膮 wykluczeniu z post臋powania o udzielenie zam贸wienia.

12. W celu potwierdzenia, 偶e Wykonawca posiada uprawnienie do wykonywania okre艣lonej dzia艂alno艣ci lub czynno艣ci oraz nie podlega wykluczeniu na podstawie art. 24 ustawy z dnia 29 stycznia 2004 r. - Prawo zam贸wie艅 publicznych, zamawiaj膮cy 偶膮da, nast臋puj膮cych dokument贸w:

a) aktualnego odpisu z w艂a艣ciwego rejestru albo aktualnego za艣wiadczenia o wpisie do ewidencji dzia艂alno艣ci gospodarczej, je偶eli odr臋bne przepisy wymagaj膮 wpisu do rejestru聽lub zg艂oszenia do ewidencji dzia艂alno艣ci gospodarczej, wystawionego nie wcze艣niej ni偶 6聽聽miesi臋cy przed up艂ywem terminu sk艂adania ofert;

b) o艣wiadczenie wykonawcy, 偶e nie posiada zaleg艂o艣ci podatkowej wobec Naczelnika Urz臋du Skarbowego,

c) o艣wiadczenie wykonawcy, 偶e nie posiada zaleg艂o艣ci wobec Zak艂adu Ubezpiecze艅 Spo艂ecznych w op艂acaniu sk艂adek na ubezpieczenie spo艂eczne, zdrowotne oraz Fundusz Pracy.

2) W celu potwierdzenia posiadania przez wykonawc臋 niezb臋dnej wiedzy i do艣wiadczenia oraz os贸b zdolnych do wykonania zam贸wienia, zamawiaj膮cy 偶膮da nast臋puj膮cych dokument贸w:

a) wykazu wykonanych rob贸t budowlanych w okresie ostatniego 1 roku, przed dniem wszcz臋cia post臋powania o udzielenie zam贸wienia, z podaniem ich warto艣ci oraz daty imiejsca wykonania oraz za艂膮czeniem dokument贸w potwierdzaj膮cych, 偶e roboty te zosta艂ywykonane nale偶ycie, z艂. nr 2 do siwz (minimum 1 referencja),

b) zamawiaj膮cy 偶膮da za艂膮czenia kserokopii uprawnie艅 budowlanych w specjalno艣ciachobj臋tych przedmiotem zam贸wienia,

c) aktualnego wpisu do w艂a艣ciwych Izb Zawodowych.

3) W celu potwierdzenia, 偶e wykonawca znajduje si臋 w sytuacji ekonomicznej i finansowej zapewniaj膮cej wykonanie zam贸wienia zamawiaj膮cy 偶膮da nast臋puj膮cych dokument贸w:

a) polisy, a w przypadku jej braku innego dokumentu potwierdzaj膮cego, 偶e wykonawcajest ubezpieczony od odpowiedzialno艣ci cywilnej w zakresie prowadzonej dzia艂alno艣ci.

4) Wype艂nione nast臋puj膮ce za艂膮czniki:

a) o艣wiadczenie w trybie art. 24 ustawy Pzp (za艂. nr 3 do siwz),

b) o艣wiadczenie w trybie art.22 ust.1 pkt.1-4ustawyPzp (za艂. nr 4 do siwz).

c) formularz ofertowy wykonawcy (za艂. nr 1 do swiz).

5) Kosztorys ofertowy, kt贸ry musi by膰 integraln膮 cz臋艣ci膮 z艂o偶onej oferty. Podstaw膮 do聽聽opracowania przez Wykonawc臋kosztorysu ofertowego jestprzedmiar rob贸t, b臋d膮cy聽聽聽za艂膮cznikiem do siwz. Wykonawca mo偶e przyj膮膰 dowoln膮 form臋 i podstaw臋 wyceny rob贸t.

13. Miejsce i termin sk艂adania ofert:

Oferty nale偶y z艂o偶y膰 w sekretariacie Przedsi臋biorstwa Gospodarki Komunalnej i Mieszkaniowej Sp. z o.o., ul. ks. Piotra Wawrzyniaka 33, 88-100 Inowroc艂aw,do dnia 29 wrze艣nia 2006 r. godz. 9.30.

14. Kryteria wyboru oferty(w % ):

聽聽聽 a)cena wykonania zam贸wienia聽聽聽聽聽聽聽聽聽聽聽聽聽聽 80 %

聽聽聽聽 b) gwarancja聽聽聽聽聽聽聽聽聽聽聽聽 聽聽聽聽聽聽聽聽聽聽聽聽聽聽聽聽聽聽聽聽聽聽聽聽聽聽聽聽聽聽聽20 %

15. Zamawiaj膮cy nie wymaga wadium.

16.Miejsce i termin otwarcia ofert: Przedsi臋biorstwo Gospodarki Komunalnej i Mieszkaniowej Sp. z o.o., ul. ks. Piotra Wawrzyniaka 33, 88-100 Inowroc艂aw dnia 29 wrze艣nia 2006 r.godz. 10.00.

17.Termin zwi膮zaniaofert膮: 30 dni .

18. Zabezpieczenie nale偶ytego wykonania umowy (znwu) w wysoko艣ci 2 % od ustalonej warto艣ci zam贸wienia.

Podpis:

聽聽聽聽聽聽 ………………………..

TypRozmiarPobierzKomentarzData dodaniaLicznik 
.DOC209 KB POBIERZspecyfikacja istotnych warunk贸w zam贸wienia.2006-09-14 14:40:59467
.DOC96.5 KB POBIERZZa艂 nr 6 do siwz2006-09-14 14:41:331458
?6.2 KB POBIERZzal. 7 przedmiary2006-09-14 14:41:55481
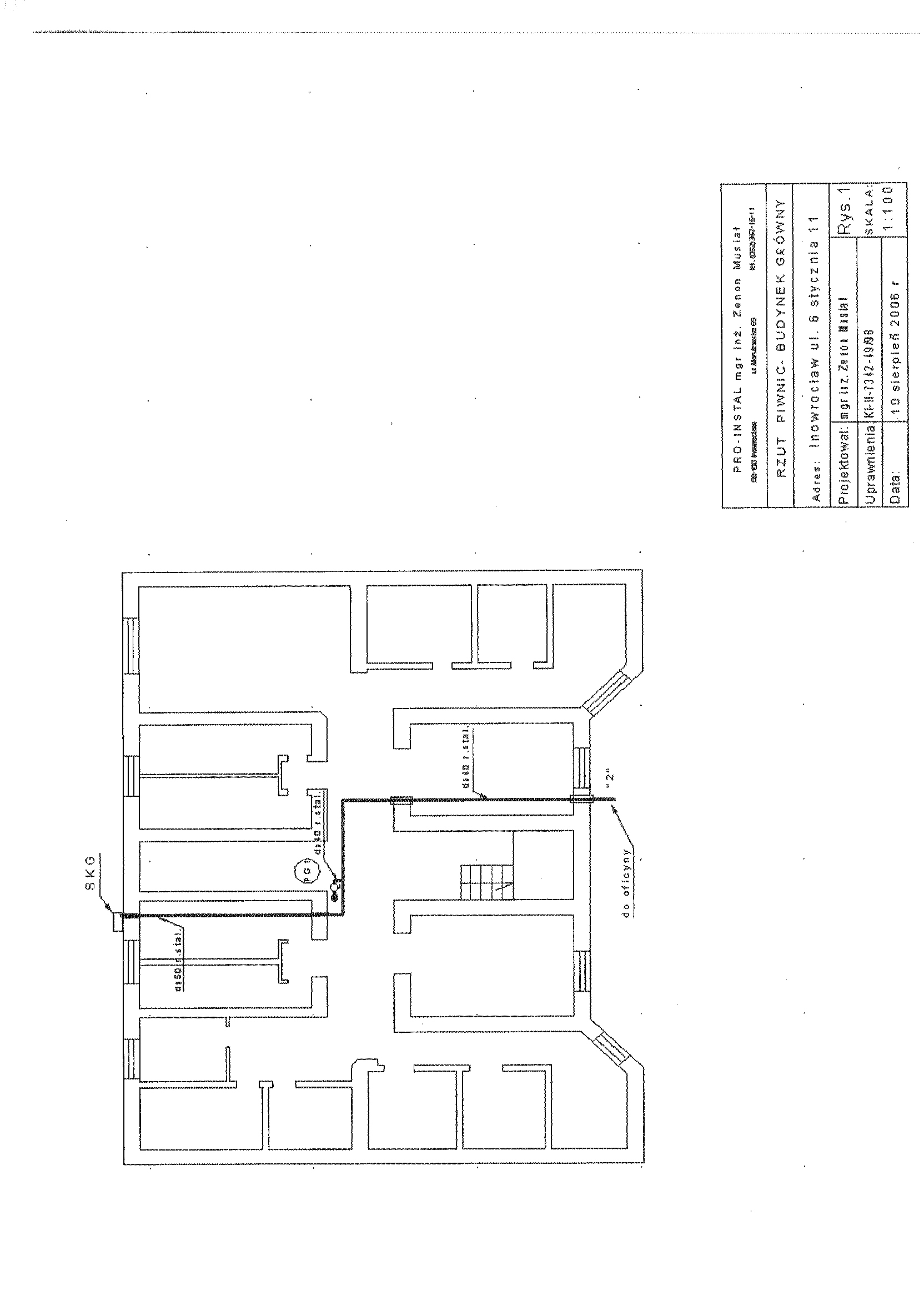
.DOC10.5 KB POBIERZzal. nr 8 - projekt 12006-09-14 14:42:21471
graf.724.1 KB POBIERZzal. nr 8 - projekt 22006-09-14 14:43:01453
graf.660.8 KB POBIERZzal. nr 8 do siwz - projekt budowlany 32006-09-14 14:43:47433
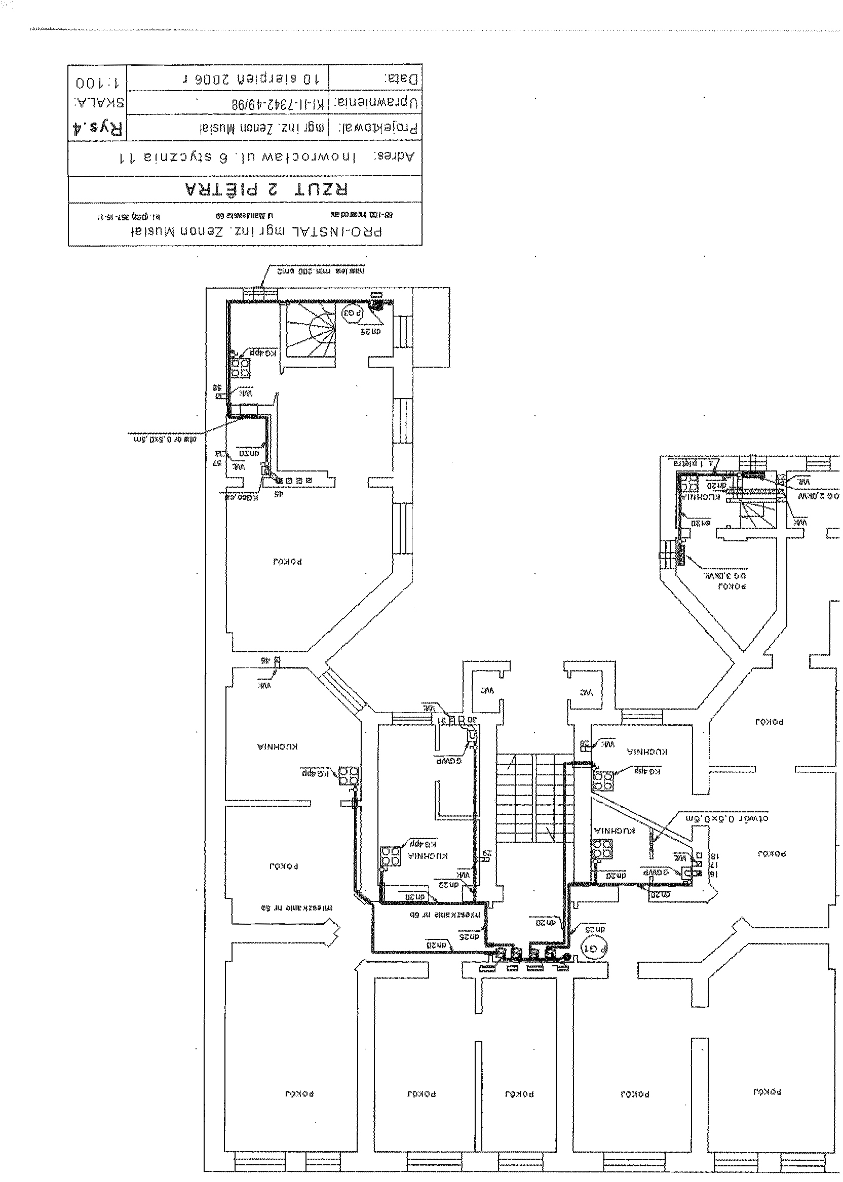
graf.432.6 KB POBIERZzal. nr 8 - projekt 42006-09-14 14:44:23449
graf.454.9 KB POBIERZzal. nr 8 - projekt 52006-09-14 14:44:53443
graf.729.2 KB POBIERZzal. nr 8 - projekt 62006-09-14 14:45:29457
graf.742.7 KB POBIERZzal. nr 8 - projekt 72006-09-14 14:46:11412
.DOC24 KB POBIERZOg艂oszenie o uniewa偶nieniu post臋powania.2006-10-02 13:24:18438

Autor : kg
Zredagowa艂(a) : Krystyna Glonek
Data wprowadzenia : 2006-09-14 14:40:10
Data ostatniej modyfikacji : 2006-09-14 14:40:10
Liczba wy艣wietle艅 : 1735



licznik odwiedzin: 5948274