logo
Zam贸wienia publiczne » Wrzesie艅 2009
25/09/2009 Og艂oszenie o wszcz臋ciu post臋powania.

"Przystosowanie budynku administracyjnego przy ulicy Wawrzyniaka 33 w Inowroc艂awiu dla potrzeb os贸b niepe艂nosprawnych (monta偶 d藕wigu platformowego) oraz wykonanie rob贸t remontowych wewn膮trz budynku.

Numer sprawy: DMP. 41/2009聽聽聽聽聽聽聽聽聽聽聽聽聽聽聽聽聽聽聽聽聽聽聽聽聽聽聽聽Inowroc艂aw, dnia 25 wrze艣nia 2009 r.聽聽

OG艁OSZENIE O WSZCZ臉CIU POST臉POWANIA

Numer og艂oszenia w BZP: 164067 - 2009;

data zamieszczenia 25/09/2009 r.

Zamieszczenie nieobowi膮zkowe

Zam贸wienia publiczne

1. Zamawiaj膮cy: Przedsi臋biorstwo Gospodarki Komunalnej i Mieszkaniowej Sp. z o.o. w Inowroc艂awiu

Adres pocztowy:

Ulica: ks. Piotra Wawrzyniaka 33

Kod: 88-100, Miejscowo艣膰: Inowroc艂aw

Telefon / faks 052 35 64聽304

Adres strony internetowej: www.pgkimino.pl

e-mail: pgkim@poczta.internetdsl.pl

Adres strony internetowej, na kt贸rej dost臋pna jest specyfikacja istotnych warunk贸w zam贸wienia: http://pgkim-inowroclaw.samorzady.pl

Rodzaj zamawiaj膮cego: Sp贸艂ka z o. o. - w艂asno艣膰 samorz膮dowa, zarz膮dzanie nieruchomo艣ciami

1.1. Osobami uprawnionymi do kontakt贸w z Wykonawcami s膮:

a) w cz臋艣ci formalnej zam贸wienia - Krystyna Glonek, tel./ faks 052 35 64 304,

b) w cz臋艣ci merytorycznej zam贸wienia - Anna Nawrocka, Mariusz Minta, tel. 052聽35 64聽325.

1.2. Op艂ata za otrzymanie specyfikacji istotnych warunk贸w zam贸wienia b臋dzie pokrywa膰 jedynie koszty jej druku oraz przekazania.

1.3. Wykonawca zainteresowany post臋powaniem powinien z艂o偶y膰 wniosek u zamawiaj膮cego z podaniem wszystkich danych firmy - niezb臋dnych do przekazywania zmian i zapyta艅 dotycz膮cych powy偶szego post臋powania.

2. Nazwa nadana zam贸wieniu: "Przystosowanie budynku administracyjnego przy ulicy Wawrzyniaka 33 w Inowroc艂awiu dla potrzeb os贸b niepe艂nosprawnych (monta偶 d藕wigu platformowego) oraz wykonanie rob贸t remontowych wewn膮trz budynku".

Rodzaj zam贸wienia: robota budowlana

2.1. Prace obejmuj膮: wykucie z muru o艣cie偶nic, uzupe艂nienie 艣cian i zamurowanie otwor贸w, uzupe艂nienie tynk贸w, przebicie otwor贸w, wykonanie sklepie艅, rozebranie luksfer贸w, wstawienie nowych drzwi, zamontowanie okien, zerwanie posadzki, malowanie farbami, monta偶 balustrad schodowych, monta偶 element贸w dekoracyjnych, zerwanie starych tapet, wymian臋 grzejnik贸w, wykonanie fundament贸w, wymurowanie 艣cian, monta偶 d藕wigu platformowego, demonta偶 i monta偶 puszek, 艂膮cznik贸w instalacyjnych, gniazd wtyczkowych, tablic bezpiecznikowych, opraw, pomiar rezystancji, sprawdzenie zasilania.

2.2.Wsp贸lny S艂ownik Zam贸wie艅 (CPV): 45.21.00.00 - 2, 45.41.00.00 - 4, 45.44.21.00 - 8, 45.43.00.00 -0, 45.31.00.00 - 3.

Nie dopuszcza si臋 sk艂adania ofert cz臋艣ciowych.

Nie dopuszcza si臋 sk艂adania ofert wariantowych.

Zamawiaj膮cy nie przewiduje zawarcia umowy ramowej, jak r贸wnie偶 nie dokona wyboru oferty najkorzystniejszej z zastosowaniem aukcji elektronicznej.

Zamawiaj膮cy nie przewiduje mo偶liwo艣ci ustanowienia dynamicznego systemu zakup贸w.

2.3. Termin (okres) realizacji zam贸wienia: 15 grudnia 2009 r.

3. O udzielenie zam贸wienia mog膮 ubiega膰 si臋 wy艂膮cznie Wykonawcy, kt贸rzy:

a) posiadaj膮 uprawnienia do wykonywania okre艣lonej dzia艂alno艣ci lub czynno艣ci, je偶eli ustawy nak艂adaj膮 obowi膮zek posiadania takich uprawnie艅,

b) posiadaj膮 niezb臋dn膮 wiedz臋 i do艣wiadczenie oraz dysponuj膮 potencja艂em techniczny i osobami zdolnymi do wykonania zam贸wienia lub przedstawi膮 pisemne zobowi膮zanie innych podmiot贸w do udost臋pnienia potencja艂u technicznego i os贸b zdolnych do wykonania zam贸wienia,

c) znajduj膮 si臋 w sytuacji ekonomicznej i finansowej zapewniaj膮cej wykonanie zam贸wienia,

d) nie podlegaj膮 wykluczeniu z post臋powania o udzielenie zam贸wienia.

Zamawiaj膮cy oceni spe艂nienie warunk贸w wymienionych w niniejszym rozdziale na podstawie z艂o偶onych przez Wykonawc臋 do oferty, o艣wiadcze艅 i dokument贸w.

聽聽聽聽聽聽聽聽聽聽聽聽

Ocena spe艂niania warunk贸w dokonana zostanie na zasadzie:

聽聽聽聽聽聽聽聽聽聽聽聽聽聽聽聽聽聽聽聽聽聽聽聽聽聽聽聽聽聽聽聽聽聽聽聽聽聽聽聽聽聽聽聽 spe艂nia/ nie spe艂nia

4. W celu potwierdzenia, 偶e Wykonawca posiada uprawnienie do wykonywania okre艣lonej dzia艂alno艣ci lub czynno艣ci oraz nie podlega wykluczeniu na podstawie art. 24 ustawy z dnia 29 stycznia 2004 r. - Prawo zam贸wie艅 publicznych, zamawiaj膮cy 偶膮da, nast臋puj膮cych dokument贸w:

a) aktualnego odpisu z w艂a艣ciwego rejestru albo aktualnego za艣wiadczenia o wpisie do ewidencji dzia艂alno艣ci gospodarczej, je偶eli odr臋bne przepisy wymagaj膮 wpisu do rejestru lub zg艂oszenia do ewidencji dzia艂alno艣ci gospodarczej, wystawionego nie wcze艣niej ni偶 6 miesi臋cy przed up艂ywem terminu sk艂adania ofert;

b) o艣wiadczenie wykonawcy, 偶e nie posiada zaleg艂o艣ci podatkowej wobec Naczelnika Urz臋du Skarbowego,

c) o艣wiadczenie wykonawcy, 偶e nie posiada zaleg艂o艣ci wobec Zak艂adu Ubezpiecze艅 Spo艂ecznych w op艂acaniu sk艂adek na ubezpieczenie spo艂eczne, zdrowotne oraz Fundusz Pracy.

4.1.W celu potwierdzenia posiadania przez wykonawc臋 niezb臋dnej wiedzy i do艣wiadczenia oraz os贸b zdolnych do wykonania zam贸wienia, zamawiaj膮cy 偶膮da nast臋puj膮cych dokument贸w:

a) wykazu wykonanych rob贸t budowlanych w okresie ostatniego 1 roku, przed dniem wszcz臋cia post臋powania o udzielenie zam贸wienia, z podaniem ich warto艣ci oraz daty i miejsca wykonania oraz za艂膮czeniem dokument贸w potwierdzaj膮cych, 偶e roboty te zosta艂y wykonane nale偶ycie, z艂. nr 2 do siwz (minimum 2 referencje),

a) zamawiaj膮cy 偶膮da za艂膮czenia kserokopii uprawnie艅 budowlanych w specjalno艣ciach obj臋tych przedmiotem zam贸wienia, w zakresie rob贸t og贸lnobudowlanych i instalacji elektrycznych,

b) 艣wiadectwa kwalifikacyjnego E - eksp instalacji elektrycznej do 1 kV,

c) aktualnego wpisu do w艂a艣ciwych Izb Zawodowych.

4.2. W celu potwierdzenia, 偶e wykonawca znajduje si臋 w sytuacji ekonomicznej i finansowej zapewniaj膮cej wykonanie zam贸wienia zamawiaj膮cy 偶膮da nast臋puj膮cych dokument贸w:

a) polisy, a w przypadku jej braku innego dokumentu potwierdzaj膮cego, 偶e wykonawca jest ubezpieczony od odpowiedzialno艣ci cywilnej w zakresie prowadzonej dzia艂alno艣ci.

4.3.Wype艂nione nast臋puj膮ce za艂膮czniki:

a) formularz ofertowy wykonawcy (za艂. nr 1 do swiz).

b) o艣wiadczenie w trybie art.22 ust.1 pkt.1-4 ustawy Pzp (za艂. nr 3 do siwz),

c) wykaz podobnych rob贸t (za艂. nr 2 do siwz).

4.4. Kosztorys ofertowy, kt贸ry musi by膰 integraln膮 cz臋艣ci膮 z艂o偶onej oferty. Podstaw膮 do opracowania przez Wykonawc臋 kosztorysu ofertowego jest przedmiar rob贸t, b臋d膮cy za艂膮cznikiem do siwz. Wykonawca mo偶e przyj膮膰 dowoln膮 form臋 i podstaw臋 wyceny rob贸t.

5. Miejsce i termin sk艂adania ofert: oferty nale偶y z艂o偶y膰 w sekretariacie Przedsi臋biorstwa Gospodarki Komunalnej i Mieszkaniowej Sp. z o.o., ul. ks. Piotra Wawrzyniaka 33, 88-100 Inowroc艂aw, do dnia 20 pa藕dziernika 2009 r. do godziny 9:50

聽聽聽聽聽聽聽聽聽聽聽聽聽聽聽聽聽聽聽聽聽聽聽聽聽聽聽聽聽聽聽聽聽聽聽聽聽聽聽聽聽聽聽聽聽聽聽聽聽聽聽聽聽聽聽聽聽聽聽聽聽聽聽聽聽聽聽聽聽聽聽聽聽聽聽聽聽聽聽聽聽聽聽聽聽聽聽聽聽聽聽聽聽聽聽聽聽聽聽聽聽聽聽聽聽聽聽聽聽聽聽聽聽聽聽聽聽聽聽聽聽聽聽聽聽聽聽聽聽聽聽聽聽

6. Kryteria wyboru ofert (w %):

聽聽聽 a) cena wykonania zam贸wienia 80 %

聽聽聽聽 b) gwarancja 20 %

7. Zamawiaj膮cy nie wymaga wadium.

8. Miejsce i termin otwarcia ofert: Przedsi臋biorstwo Gospodarki Komunalnej i Mieszkaniowej Sp. z o.o., ul. ks. Piotra Wawrzyniaka 33, 88-100 Inowroc艂aw, dnia 20 pa藕dziernika 2009 r. o godzinie 10:00

9. Termin zwi膮zania ofert膮: 30 dni .

10. Zabezpieczenie nale偶ytego wykonania umowy (znwu) w wysoko艣ci 2 % od ustalonej warto艣ci zam贸wienia.

Podpis:

聽聽聽聽聽聽

TypRozmiarPobierzKomentarzData dodaniaLicznik 
.DOC224 KB POBIERZSpecyfikacja istotnych warunk贸w zam贸wienia.2009-09-25 13:25:38773
.PDF134.5 KB POBIERZza艂. nr 5 do siwz - STWiOR Rb2009-09-25 13:29:351228
.PDF67.4 KB POBIERZza艂. nr 5 do siwz- STWiOR Re2009-09-25 13:30:26740
.PDF68.9 KB POBIERZza艂. nr 5 do siwz- STWiOR winda2009-09-25 13:31:08777
.PDF49.5 KB POBIERZza艂. nr 5 do siwz- STWiOR winda2009-09-25 13:31:32781
.PDF83 KB POBIERZza艂. nr 6 do siwz- przedmiar Rb2009-09-25 13:32:46637
.PDF45.9 KB POBIERZza艂. nr 6 do siwz- przedmiar Re2009-09-25 13:33:11630
.PDF36.5 KB POBIERZza艂. nr 6 do siwz- przedmiar winda2009-09-25 13:36:18754
.PDF94 KB POBIERZza艂. nr 7 do siwz- projekt2009-09-25 13:37:23879
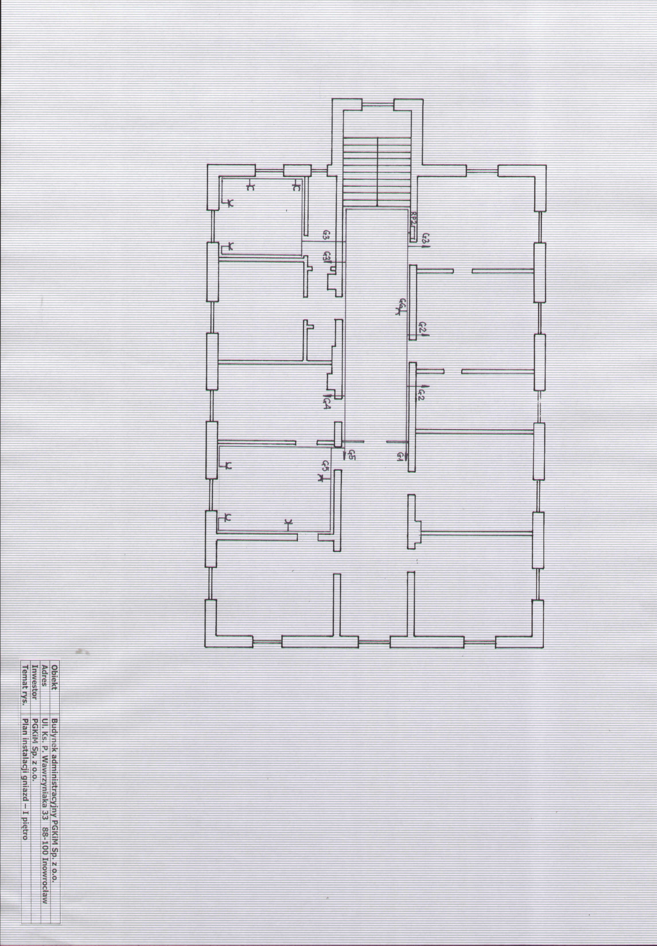
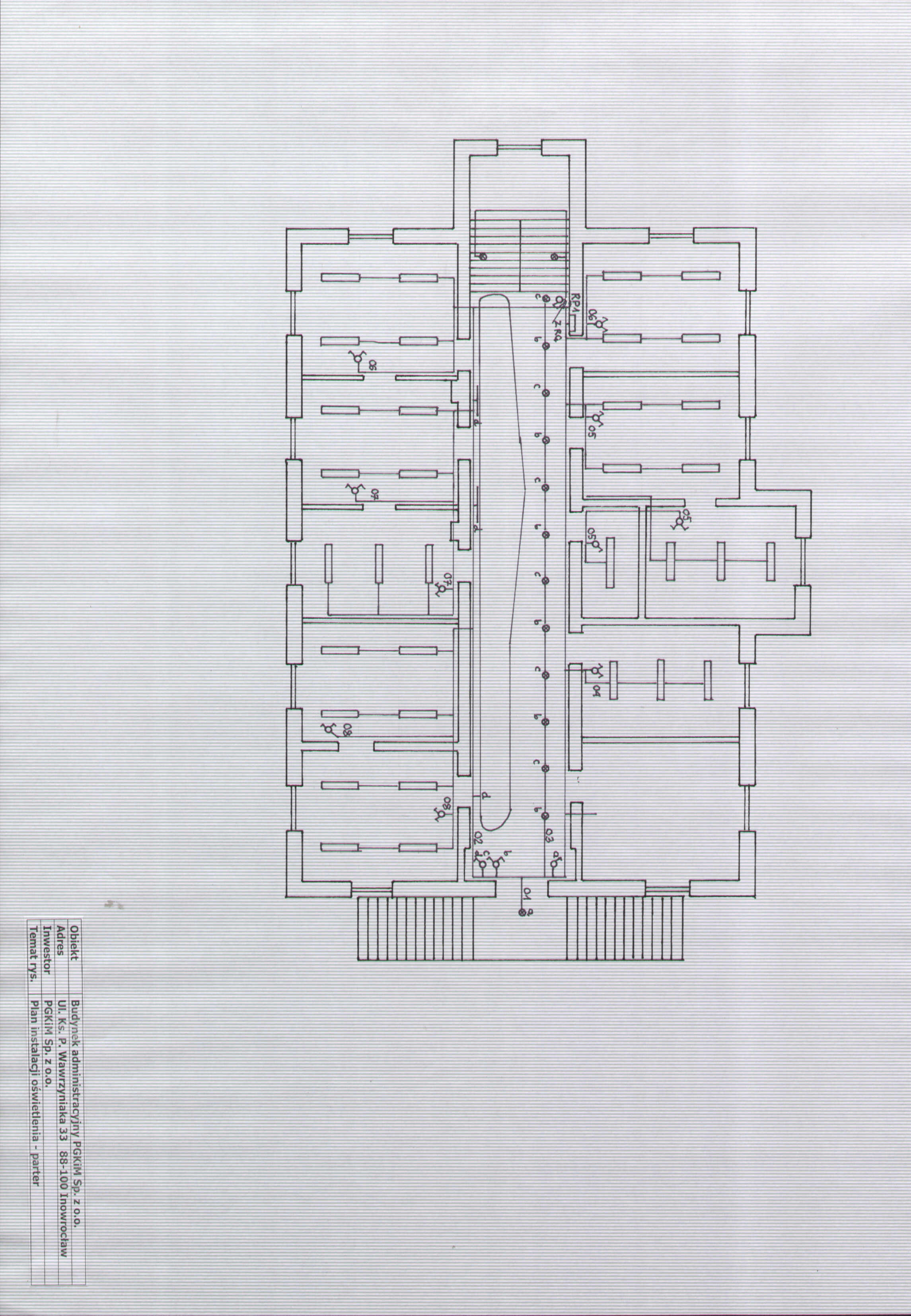
.PDF66 KB POBIERZrys.12009-09-25 13:37:42776
.PDF84.9 KB POBIERZrys.1 e2009-09-25 13:38:13801
.PDF57.5 KB POBIERZrys.22009-09-25 13:38:36811
.PDF64.2 KB POBIERZrys.2 e2009-09-25 13:38:49775
.PDF60.5 KB POBIERZrys.32009-09-25 13:39:01785
.PDF27.4 KB POBIERZrys.42009-09-25 13:39:14788
.PDF49.7 KB POBIERZrys.52009-09-25 13:39:23798
.PDF89 KB POBIERZrys.62009-09-25 13:39:34817
.PDF126.3 KB POBIERZrys.72009-09-25 13:39:44753
.PDF178.6 KB POBIERZrys.82009-09-25 13:39:57788
graf.1790.5 KB POBIERZrys. 9 drzwi2009-09-25 13:43:31790
.PDF2658.1 KB POBIERZinwert. fotog.2009-09-25 13:44:37769
graf.642 KB POBIERZZmiana terminu sk艂adania ofert.2009-09-28 08:23:57810
graf.770.9 KB POBIERZOdpowiedzi na pytania2009-10-12 13:29:30434
graf.304.4 KB POBIERZTre艣膰 pyta艅2009-10-12 13:29:47475
graf.466.8 KB POBIERZRys.12009-10-12 13:30:09486
graf.866.2 KB POBIERZRys.22009-10-12 13:30:32481
graf.833.9 KB POBIERZRys. 32009-10-12 13:30:53456
graf.403.5 KB POBIERZRys.42009-10-12 13:31:14449
graf.429.2 KB POBIERZRys.52009-10-12 13:31:29391
graf.914.3 KB POBIERZRys.62009-10-12 13:31:58440
graf.896.6 KB POBIERZRys.72009-10-12 13:32:26446
graf.885.5 KB POBIERZRys. 82009-10-12 13:32:56480
graf.468.6 KB POBIERZrys.92009-10-12 13:33:16412
graf.468.9 KB POBIERZRys.102009-10-12 13:33:31447
graf.453.8 KB POBIERZRys. 112009-10-12 13:33:50437
graf.812.5 KB POBIERZZawiadomienie o uniewa偶nieniu post臋powania.2009-10-21 12:03:08448
graf.438.2 KB POBIERZZbiorcze zestawienie ofert.2009-10-21 12:03:40482
graf.411.7 KB POBIERZOferta wykluczona2009-10-21 12:04:36454

Autor : kg
Zredagowa艂(a) : Krystyna Glonek
Data wprowadzenia : 2009-09-25 13:24:50
Data ostatniej modyfikacji : 2009-09-25 13:24:50
Liczba wy艣wietle艅 : 2161



licznik odwiedzin: 5948256