logo
Zam贸wienia publiczne » Wrzesie艅 2006
28.09.2006 r. Og艂oszenie o wszcz臋ciu post臋powania.

"Zamurowanie 艣cian dw贸ch klatek schodowych wraz z osadzeniem stolarki okiennej oraz malowanie klatek schodowych w budynku Wsp贸lnoty Mieszkaniowej przy ulicy Wilko艅skiego 42 w Inowroc艂awiu".

Numer sprawy: DMP. 88/2006聽聽聽聽聽聽聽聽聽聽聽聽聽聽聽聽聽聽聽聽聽聽聽聽聽聽聽聽 Inowroc艂aw, dnia 28 wrze艣nia 2006 r.聽聽

聽聽聽聽聽聽聽聽聽聽聽聽聽聽聽聽聽聽聽聽聽聽聽聽聽聽聽聽聽聽 OG艁OSZENIE

o przetargu nieograniczonym o warto艣ci poni偶ej 60 000 EURO

1.聽聽聽聽聽 Zamawiaj膮cy: Wsp贸lnota Mieszkaniowa przy ulicy Wilko艅skiego 42w Inowroc艂awiu, w imieniu i na rzecz kt贸rej dzia艂a na mocy umowy o administrowanie, Przedsi臋biorstwo Gospodarki Komunalnej i Mieszkaniowej Sp. z o.o. w Inowroc艂awiu

Ulica: ks. Piotra Wawrzyniaka 33

Kod: 88-100, Miejscowo艣膰: Inowroc艂aw

Telefon: (0-52) 357- 48-18, faks: (0-52) 357-32-32

REGON: 091581150 NIP: 556-080-85

E-mail: pgkim@poczta.internetdsl.pl

2.聽聽聽聽聽 Przedmiot zam贸wienia:

„Zamurowanie 艣cian dw贸ch klatek schodowych wraz z osadzeniem stolarki okiennej oraz malowanie klatek schodowych w budynku Wsp贸lnoty Mieszkaniowej przy ulicy Wilko艅skiego 42 w Inowroc艂awiu”.

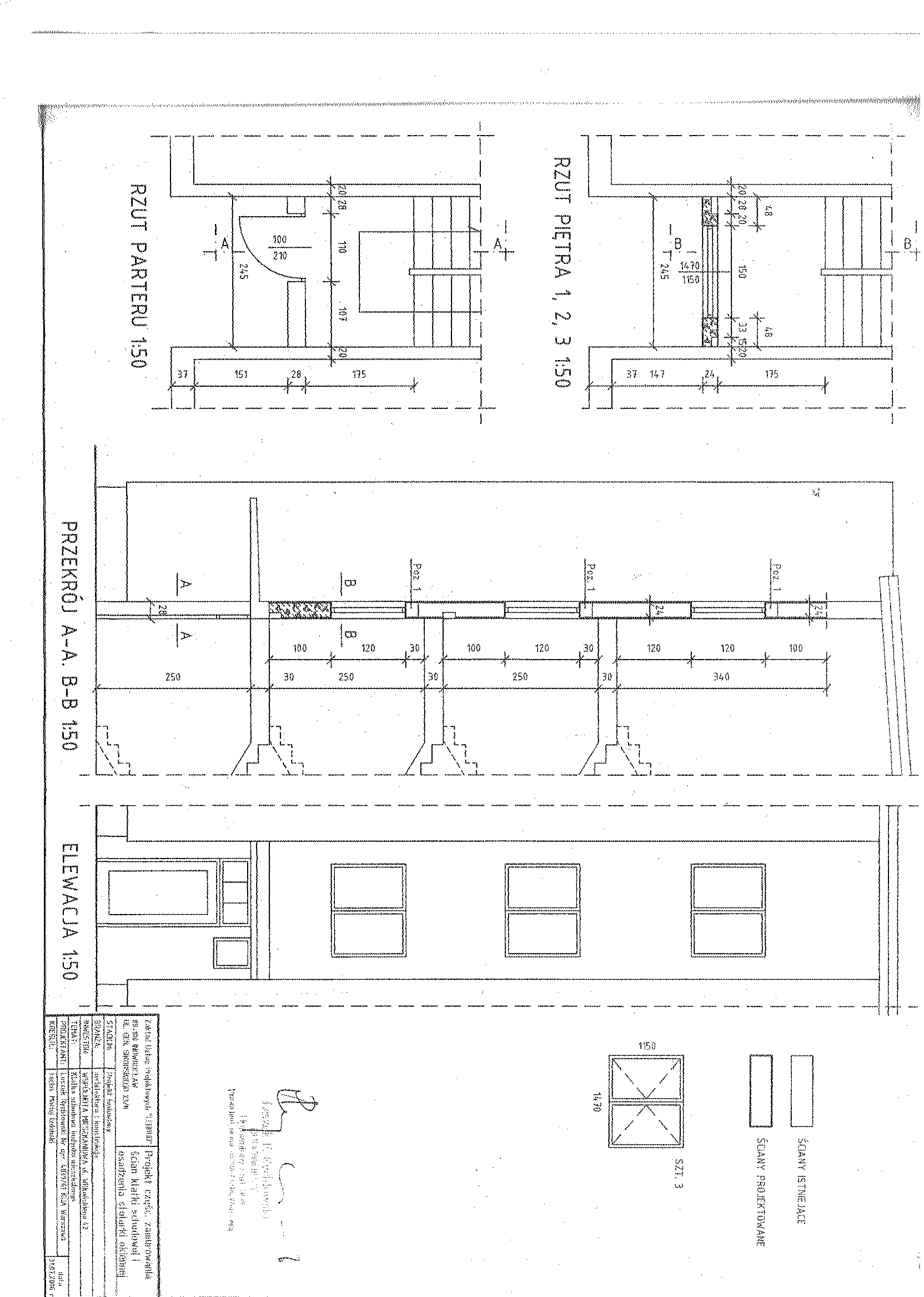
3. Przedmiotem zam贸wienia jest:

a) demonta偶 balustrad na istniej膮cym przeszkleniu klatki,

b) rozebranie 艣cianek z luksfer贸w,

c) uzupe艂nienie 艣cian z bloczk贸w,

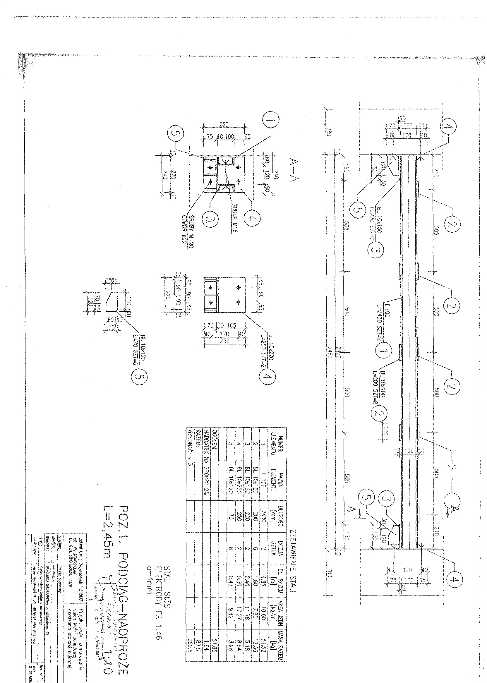
d) wykonanie nadpro偶y,

e) osadzenie stolarki okiennej PCV,

f) uzupe艂nienie tynku wewn臋trznego z pomalowaniem,

g) docieplenie 艣ciany od strony zewn臋trznej,

h) malowanie klatek schodowych,

i) zamontowanie drzwi do piwnicy.

4. Nomenklatura – wg Wsp贸lnego S艂ownika Zam贸wie艅 (CPV):

聽聽聽聽聽 45.5.30.00 -7 roboty remontowe

5. Nie dopuszcza si臋 sk艂adania ofert cz臋艣ciowych.

6. Nie dopuszcza si臋 sk艂adania ofert wariantowych.

7. Osobami uprawnionymi do kontakt贸w z wykonawcami s膮:

聽聽聽 a) Maria Jezierska, tel. 052 35 64聽320, 052 357-20 -93,

聽聽聽 b) Maria Sarnowska, tel. 052聽357 2093,

聽聽聽 c) Krystyna Glonek, tel. 052357 48 18.

8. Termin (okres) realizacji zam贸wienia: od podpisania umowy w ci膮gu 2 miesi臋cy.

9. Adres strony internetowej, na kt贸rej dost臋pna jest specyfikacja istotnych warunk贸w zam贸wienia: http://pgkim-inowroclaw.samorzady.pl

10. Op艂ata za otrzymanie specyfikacji istotnych warunk贸w zam贸wienia b臋dzie pokrywa膰 jedynie koszty jej druku orazprzekazania.

11. Wykonawca zainteresowany post臋powaniem powinien z艂o偶y膰 wniosek u zamawiaj膮cego z podaniem wszystkich danych firmy -niezb臋dnych do przekazywania zmian i zapyta艅 dotycz膮cych powy偶szego post臋powania.

12. O udzielenie zam贸wienia mog膮 ubiega膰 si臋 wy艂膮cznie Wykonawcy, kt贸rzy:

1) posiadaj膮 uprawnienia do wykonywania okre艣lonej dzia艂alno艣ci lub czynno艣ci, je偶eli ustawy nak艂adaj膮 obowi膮zek posiadania takich uprawnie艅,

2) posiadaj膮 niezb臋dn膮 wiedz臋 i do艣wiadczenie oraz potencja艂 techniczny, a tak偶e dysponuj膮 osobami zdolnymi do wykonania zam贸wienia,

3) znajduj膮 si臋 w sytuacji ekonomicznej i finansowej zapewniaj膮cej wykonanie zam贸wienia,

4) nie podlegaj膮 wykluczeniu z post臋powania o udzielenie zam贸wienia.

Zamawiaj膮cy oceni spe艂nienie warunk贸w wymienionych w niniejszym rozdziale na podstawie z艂o偶onych przez Wykonawc臋, do oferty, o艣wiadcze艅 i dokument贸w.

Ocena spe艂niania warunk贸w dokonana zostanie na zasadzie:

聽聽聽聽聽聽聽聽聽聽聽聽聽聽聽聽聽聽聽聽聽聽聽聽聽聽聽聽聽聽聽聽聽聽聽聽聽聽聽聽聽聽聽聽聽聽聽聽 spe艂nia/ nie spe艂nia

13. W celu potwierdzenia, 偶e Wykonawca posiada uprawnienie do wykonywania okre艣lonej dzia艂alno艣ci lub czynno艣ci oraz nie podlega wykluczeniu na podstawie art. 24 ustawy z dnia 29 stycznia 2004 r. - Prawo zam贸wie艅 publicznych, zamawiaj膮cy 偶膮da, nast臋puj膮cych dokument贸w:

a) aktualnego odpisu z w艂a艣ciwego rejestru albo aktualnego za艣wiadczenia o wpisie do ewidencji dzia艂alno艣ci gospodarczej, je偶eli odr臋bne przepisy wymagaj膮 wpisu do rejestru lub zg艂oszenia do ewidencji dzia艂alno艣ci gospodarczej, wystawionego nie wcze艣niej ni偶 6miesi臋cy przed up艂ywem terminu sk艂adania ofert;

b) o艣wiadczenie wykonawcy, 偶e nie posiada zaleg艂o艣ci podatkowej wobec Naczelnika Urz臋du聽Skarbowego,

c) o艣wiadczenie wykonawcy, 偶e nie posiada zaleg艂o艣ci wobec Zak艂adu Ubezpiecze艅 Spo艂ecznych w op艂acaniu sk艂adek na ubezpieczenie spo艂eczne, zdrowotne oraz Fundusz聽Pracy.

2) W celu potwierdzenia posiadania przez wykonawc臋 niezb臋dnej wiedzy i do艣wiadczenia oraz os贸b zdolnych do wykonania zam贸wienia, zamawiaj膮cy 偶膮da nast臋puj膮cych dokument贸w:

a) wykazu wykonanych rob贸t budowlanych w okresie ostatniego 1 roku, przed dniem wszcz臋cia post臋powania o udzielenie zam贸wienia, z podaniem ich warto艣ci oraz daty i miejsca wykonania oraz za艂膮czeniem dokument贸w potwierdzaj膮cych, 偶e roboty te zosta艂y wykonane nale偶ycie, z艂. nr 2 do siwz (minimum 1 referencja),

b) zamawiaj膮cy 偶膮da za艂膮czenia kserokopii uprawnie艅 budowlanych w specjalno艣ciach obj臋tych przedmiotem zam贸wienia,

c) aktualnego wpisu do w艂a艣ciwych Izb Zawodowych.

3) W celu potwierdzenia, 偶e wykonawca znajduje si臋 w sytuacji ekonomicznej i finansowej zapewniaj膮cej wykonanie zam贸wienia zamawiaj膮cy 偶膮da nast臋puj膮cych dokument贸w:

a) polisy, a w przypadku jej braku innego dokumentu potwierdzaj膮cego, 偶e wykonawca jest ubezpieczony od odpowiedzialno艣ci cywilnej w zakresie prowadzonej dzia艂alno艣ci.

4) Wype艂nione nast臋puj膮ce za艂膮czniki:

a) formularz ofertowy wykonawcy (za艂. nr 1 do swiz).

b) o艣wiadczenie w trybie art. 24 ustawy Pzp (za艂. nr 3 do siwz),

c) o艣wiadczenie w trybie art.22 ust.1 pkt.1-4ustawyPzp (za艂. nr 4 do siwz).

5) Kosztorys ofertowy, kt贸ry musi by膰 integraln膮 cz臋艣ci膮 z艂o偶onej oferty. Podstaw膮 do opracowania przez Wykonawc臋kosztorysu ofertowego jestprzedmiar rob贸t, b臋d膮cy za艂膮cznikiem do siwz. Wykonawca mo偶e przyj膮膰 dowoln膮 form臋 i podstaw臋 wyceny rob贸t.

14. Miejsce i termin sk艂adania ofert:

Oferty nale偶y z艂o偶y膰 w sekretariacie Przedsi臋biorstwa Gospodarki Komunalnej i Mieszkaniowej Sp. z o.o., ul. ks. Piotra Wawrzyniaka 33, 88-100 Inowroc艂aw,do dnia 16 pa藕dziernika 2006 r. godz. 9.30.

15. Kryteria wyboru oferty(w % ):

聽聽聽 a)cena wykonania zam贸wienia聽聽聽聽聽聽聽聽聽聽聽聽聽聽 80 %

聽聽聽聽 b) gwarancja聽聽聽聽聽聽聽聽聽聽聽聽聽聽聽聽聽聽聽聽聽聽聽聽聽聽聽聽聽聽聽聽聽聽聽聽聽聽聽聽聽聽聽 20 %

16. Zamawiaj膮cy nie wymaga wadium.

17.Miejsce i termin otwarcia ofert: Przedsi臋biorstwo Gospodarki Komunalnej i Mieszkaniowej Sp. z o.o., ul. ks. Piotra Wawrzyniaka 33, 88-100 Inowroc艂aw dnia 16 pa藕dziernika 2006 r.godz. 10.00.

18.Termin zwi膮zaniaofert膮: 30 dni .

19. Zabezpieczenie nale偶ytego wykonania umowy (znwu) w wysoko艣ci 2 % od ustalonej warto艣ci zam贸wienia.

TypRozmiarPobierzKomentarzData dodaniaLicznik 
.DOC212.5 KB POBIERZspecyfikacja istotnych warunk贸w zam贸wienia.2006-09-28 08:49:41505
.DOC307 KB POBIERZzal. nr 6 do siwz - STWiOR2006-09-28 08:50:03447
.DOC21.5 KB POBIERZzal. nr 8 - projekt 12006-09-28 08:53:22448
.DOC74 KB POBIERZzal. nr 8 - projekt 22006-09-28 08:53:35568
.DOC62.5 KB POBIERZzal. nr 8 - projekt 32006-09-28 08:53:54473
graf.909 KB POBIERZzal. nr 8 - projekt 42006-09-28 08:54:29453
graf.821.3 KB POBIERZzal. nr 8 - projekt 52006-09-28 08:55:08463
?4.7 KB POBIERZzal. 7 przedmiary2006-09-28 08:57:59451
.DOC25.5 KB POBIERZmodyfikacja specyfikacji istotnych warunk贸w zam贸wienia.2006-10-12 10:59:02454
graf.314.9 KB POBIERZzal. nr 1 do pisma2006-10-12 10:59:42462
?0.8 KB POBIERZza艂. nr 2 do pisma.2006-10-12 11:00:51472
.DOC24.5 KB POBIERZOg艂oszenie o wyniku post臋powania.2006-10-19 11:45:56449
graf.586.1 KB POBIERZOg艂oszenie o zawarciu umowy.2006-10-30 09:26:06471

Autor : kg
Zredagowa艂(a) : Krystyna Glonek
Data wprowadzenia : 2006-09-28 08:49:01
Data ostatniej modyfikacji : 2006-09-28 08:49:01
Liczba wy艣wietle艅 : 1738



licznik odwiedzin: 5948317